Железные компоненты

Всё, что не подходит под вышеперечисленные разделы

Модератор: immortal

TangaRUS
Сообщения: 16
Зарегистрирован: Чт ноя 07, 2013 5:02 pm

Железные компоненты

Сообщение TangaRUS »

Доброго времени всем!
Давно вынашиваю идею умного дома вообще, а на текущем этапе умной квартиры.
В квартире ломать ничего нельзя, отсюда возникает необходимость в беспроводных или "по 220в" решениях.
Как я сейчас вижу свою систему:
1. Старый ноут в качестве сервера majordomo
2. NooLite USB-приёмник и передатчик + исполняющие модули + кнопки = управление светом
3. Есть Arduino c Ethershield - можно её использовать

А дальше начинаются вопросы :) которые и хочу уточнить. Сайт весь перечитал ("Набор Умная Квартира" почти то что надо, но там конкретики нет вообще по компонентам), но выводов для себя сделать однозначных не могу.
1. Сейчас в коридоре у меня точечный свет включается от PIR интегрированных с реле, также раздражает тормознутость их сработки (2-3 сек). Хочется это завести в общую систему, до этого места можно бросить любой кабель (да и вообще думаю там-же на шкафу поселить ноут). Вопрос: какие исполнительные реле и отдельные PIR(или не PIR, а микроволновые датчики например посоветуете?) использовать?
2. Есть желание подключить беспроводные(или "по 220в"): датчики температуры, датчики движения, датчик освещённости, исполнительные механизмы(например привод жалюзей), управление розеткой (типа проходного X10, утюг например включить) - какую технологию оптимально использовать и какие датчики?
TangaRUS
Сообщения: 16
Зарегистрирован: Чт ноя 07, 2013 5:02 pm

Re: Железные компоненты

Сообщение TangaRUS »

Да, забыл написать, упоминаемый на http://smartliving.ru/Main/ArduinoSecurity OKO-RF - ссылка не работает, в РФ не нашёл.
Вопрос как раз в альтернативах, кто на чём делал?
TangaRUS
Сообщения: 16
Зарегистрирован: Чт ноя 07, 2013 5:02 pm

Re: Железные компоненты

Сообщение TangaRUS »

Нашёл интересную новость: http://thinking-home.ru/news/20.aspx
Меня лично очень радует, что скоро будет доступен датчик движения nooLite.
В таком свете решил пока забить на альтернативную радио или "по 220в" систему.
Сейчас рисую и планирую систему, как будет готов план - поделюсь.
ErmolenkoM
Сообщения: 560
Зарегистрирован: Ср сен 04, 2013 10:31 am
Откуда: Самара
Контактная информация:

Re: Железные компоненты

Сообщение ErmolenkoM »

Можно не ждать когда сделают датчик движения, а поступить вот как:
Берем обычный PIR.
Цепляем к нему http://thinking-home.ru/product/39.aspx
Профит.

Думаю время реакции будет меньше секунды.

Кстати к 39 пульту можно прицепить ТРИ!!!! PIR датчика и управлять тремя различными силовыми блоками. (например: коридор, прихожка, ванная)
Сами PIR датчики стоят 200 рублей (может можно и дешевле найти). Там внутри "сухой контакт" - замыкаем на выходы 39 пульта и готово.
По цене - меньше 1000 рублей за все, ТРИ контролируемых зоны.

А PIR от NooLite думаю один будет 1000 стоить.
aka msh555
Cubian на Cubietruck, Connect
TangaRUS
Сообщения: 16
Зарегистрирован: Чт ноя 07, 2013 5:02 pm

Re: Железные компоненты

Сообщение TangaRUS »

Спасибо!
Такая идея тоже мне пришла в голову, но для начала я попробую PIR через ардуинку подключить :)
А nooLite датчики я хочу в дальние комнаты ставить, где с проводами напряг.
TangaRUS
Сообщения: 16
Зарегистрирован: Чт ноя 07, 2013 5:02 pm

Re: Железные компоненты

Сообщение TangaRUS »

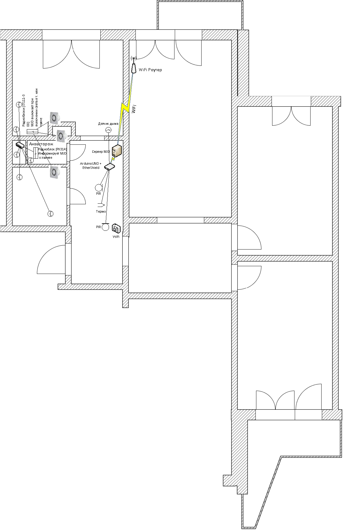
Делюсь моими планами:
1. Свет
SmartFlat-v1-light.png
SmartFlat-v1-light.png (102.69 КБ) 14955 просмотров
2. Модули
SmartFlat-v1-modules.png
SmartFlat-v1-modules.png (104.65 КБ) 14955 просмотров
3. Смета
SmartFlat-v1-price.png
SmartFlat-v1-price.png (30.67 КБ) 14955 просмотров
Вот для начала как-то так. Буду потихоньку реализовывать :)
DiArt
Сообщения: 210
Зарегистрирован: Пт апр 12, 2013 2:27 pm
Откуда: Уфа

Re: Железные компоненты

Сообщение DiArt »

Супер! ТОлько зачем аккумулятор на ноутбук? Старый умер? И Сервер на чём собираешься ставить? Windows vs Linux?
И по камере. Зашёл по твоей ссылке, по ценнику 35,99$ отдадут если возьмёшь от 3 шт,а так сумма 58,02$
Я на улицу собираюсь прикупить такую камеру. http://www.aliexpress.com/item/Tenvis-I ... 13771.html Только чуть позже.
Пиши как продвигаются дела.
Система на Неттоп 3Q Nettop Qoo!
(Intel Celeron J1800, 2x2410 МГц, 4096 Мб, HDD 1000 Гб, HDMI, VGA , Wi-Fi, Ethernet, Ubuntu 14.04.2)
Вторая система на Raspberry Pi 3.
D-Link DCS-930L/Broadlink RM2-Pro/BroadLink SP3 CC/Ginzzu HS-K07W
Я в CONNECT
TangaRUS
Сообщения: 16
Зарегистрирован: Чт ноя 07, 2013 5:02 pm

Re: Железные компоненты

Сообщение TangaRUS »

Да, старый аккумулятор сдох, а оставлять "мозг" без резервного питания как-то не очень :)
Linux конечно :) С компьютерной частью проблем я не предвижу :) Вот с Arduino и прочей низкоуровневой электроникой опыта маловато.
Камеру может и не эту конкретно, ещё почитаю, но вроде Tenvis нормальная китайская марка, а за мало денег они все одинаково поганые. Мне совсем уж уличного исполнения не нужна, т.к. в помещении буду поставить, но хочу чтобы была возможность поворота. У меня где-то была Dlink или Axis, может сначала её поставлю, если жива ещё...
TangaRUS
Сообщения: 16
Зарегистрирован: Чт ноя 07, 2013 5:02 pm

Re: Железные компоненты

Сообщение TangaRUS »

А вот такую логику работы я планирую:

1. Управляющие и исполнительные компоненты nooLite помимо прямого сопряжения, сопрягаются с USB приёмником и передатчиком. Этим обеспечивается обновление текущего состояния в MJD и возможность управления из MJD.
2. Радиоблок за выключателями в коридоре: кнопка кухонного света через MJDвключает/выключает кухонный рабочий свет.
3. Событие включения/выключения света в туалете вкл/выкл соответствующий вытяжной вентилятор.
4. Событие включения/выключения света на кухне вкл/выкл соответствующий вытяжной вентилятор.
5. После включения света в туалете он автоматически выключается через 15 минут
6. 3-я кнопка на радиопульте при входе вызывает скрипт «все ушли из дома», при этом: выключается весь свет и что-то ещё (пока не придумал)
7. 3-я кнопка на радиопульте около дивана через MJD выключает свет в кухне, коридоре и холле.
8. 3-я кнопка на радиопульте в детской через MJD постепенно гасит свет в течении 20 минут

Дополнительные скрипты MJD

1. Отправка в сон всех домашних ПК и ноутбуков

2. Включение медиаплеера Xtreamer Prodigy
3. Выключение медиаплеера и ТВ
4. Включение по WoL стационарного ПК

PS: То что связано с TV придётся делать через эмуляцию команд пультов на Arduino, сейчас как раз это копаю.
Аватара пользователя
sergejey
Site Admin
Сообщения: 4286
Зарегистрирован: Пн сен 05, 2011 6:48 pm
Откуда: Минск, Беларусь
Контактная информация:

Re: Железные компоненты

Сообщение sergejey »

Отправка в сон всех домашних ПК и ноутбуков

Кстати какие идеи как это лучше организовать? А то я Wake-on-LAN сделал, да вот думаю было бы неплохо ещё и усыплять компьютер за ненадобностью. В интернете вроде утилит хватает для подобного, но может кто уже что для себя выбрал.

Сергей Джейгало, разработчик MajorDoMo
Идеи, ошибки -- за предложениями по исправлению и развитию слежу только здесь!
Профиль Connect -- информация, сотрудничество, услуги
Ответить